Location: Tabakhmela Tbilisi
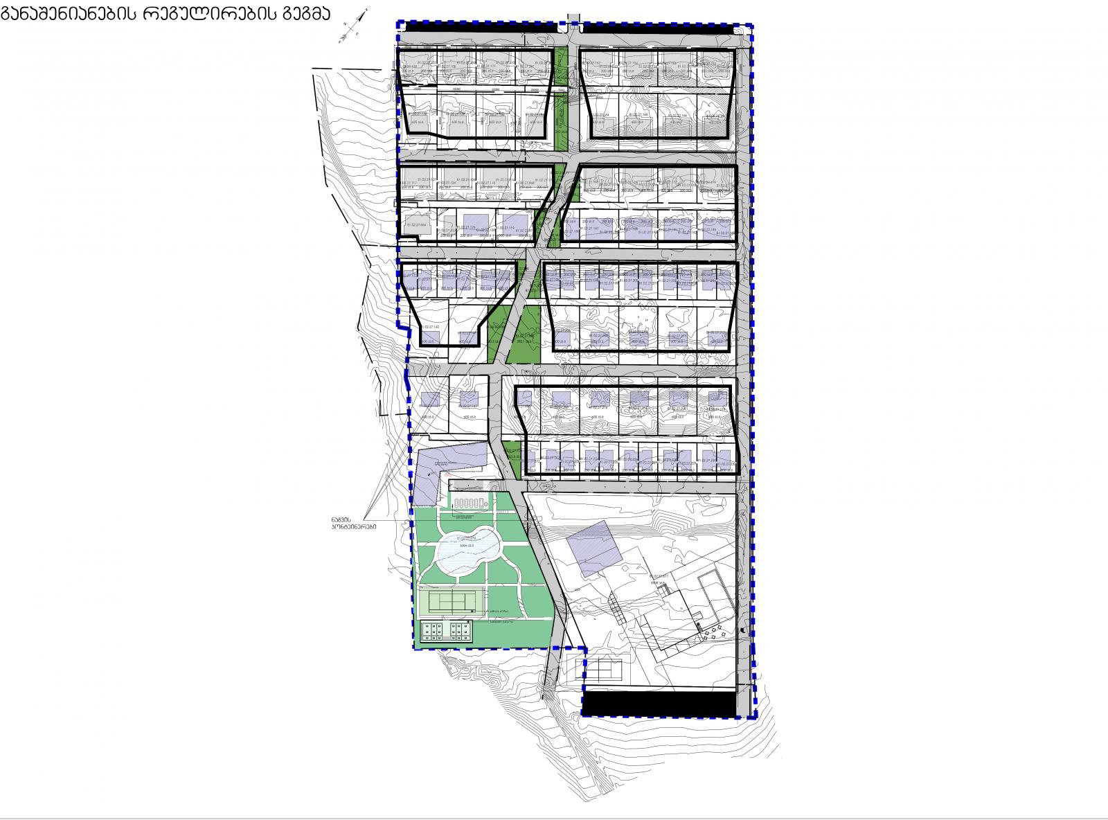
York Town Tabakhmela is a premium residential development by York Towers, located 1200 meters above sea level in the Tabakhmela area, just 20 minutes from central Tbilisi. Designed as a multifunctional and eco-conscious community, the project spans approximately 100,000 square meters, with only 20% allocated for construction and the rest dedicated to green and recreational spaces. York Town features a mix of stylish villas, duplexes, and apartments, all built using environmentally friendly materials and offering panoramic views of the surrounding landscape. The complex includes a wide range of amenities such as sports fields, wellness centers, children’s play areas, a shopping mall, and even Georgia’s largest dancing fountain. With a strong focus on sustainability, infrastructure includes water treatment facilities, a sewage network, and energy-efficient systems, ensuring a high standard of living in harmony with nature.






