Multifunctional complex project
Commercial Building Tabakhmela
Author: Vakhtangi Makasarashvili
Area: 2000 m2
Location: Tabakhmela, Tbilisi
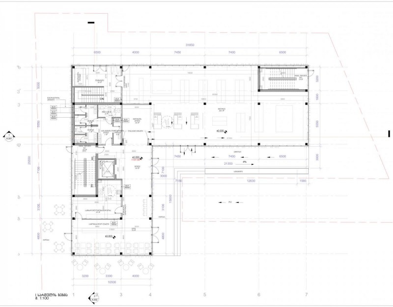
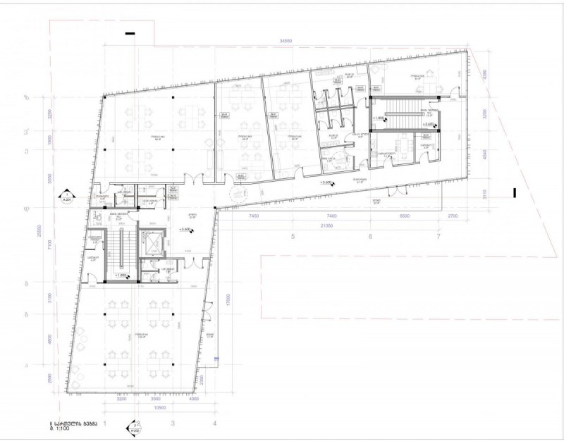
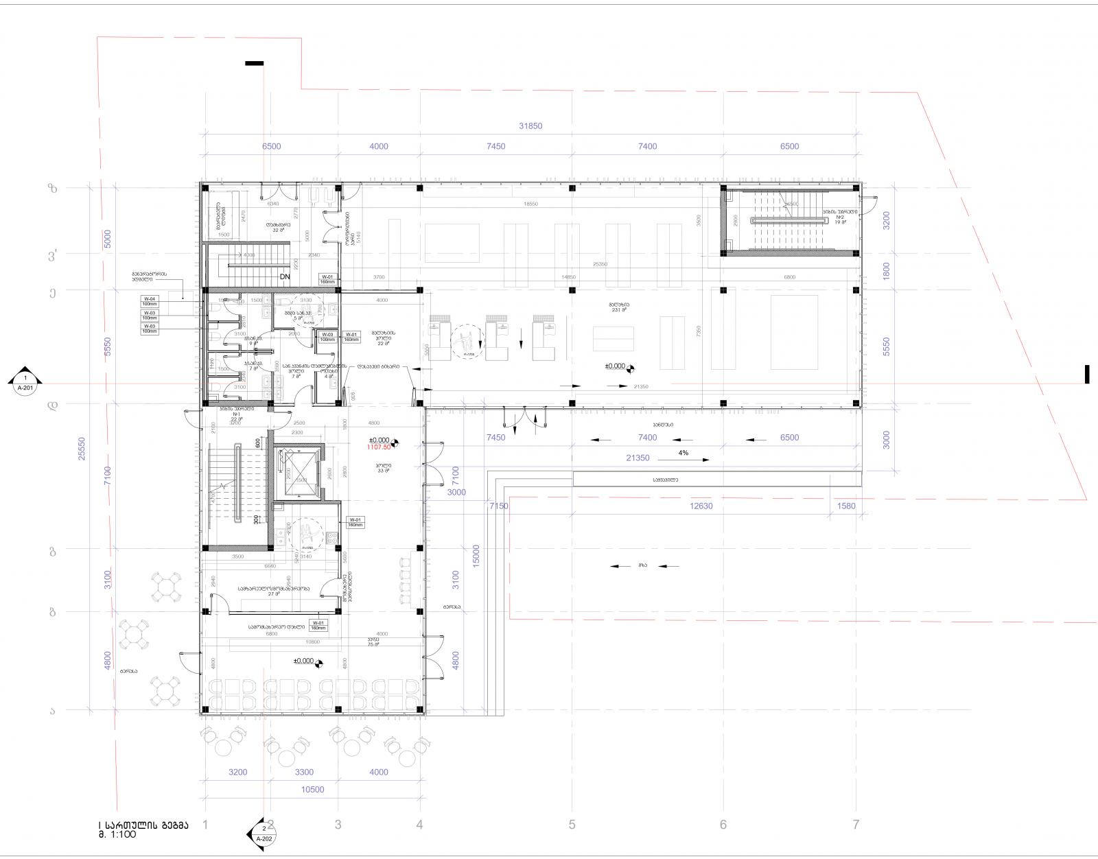
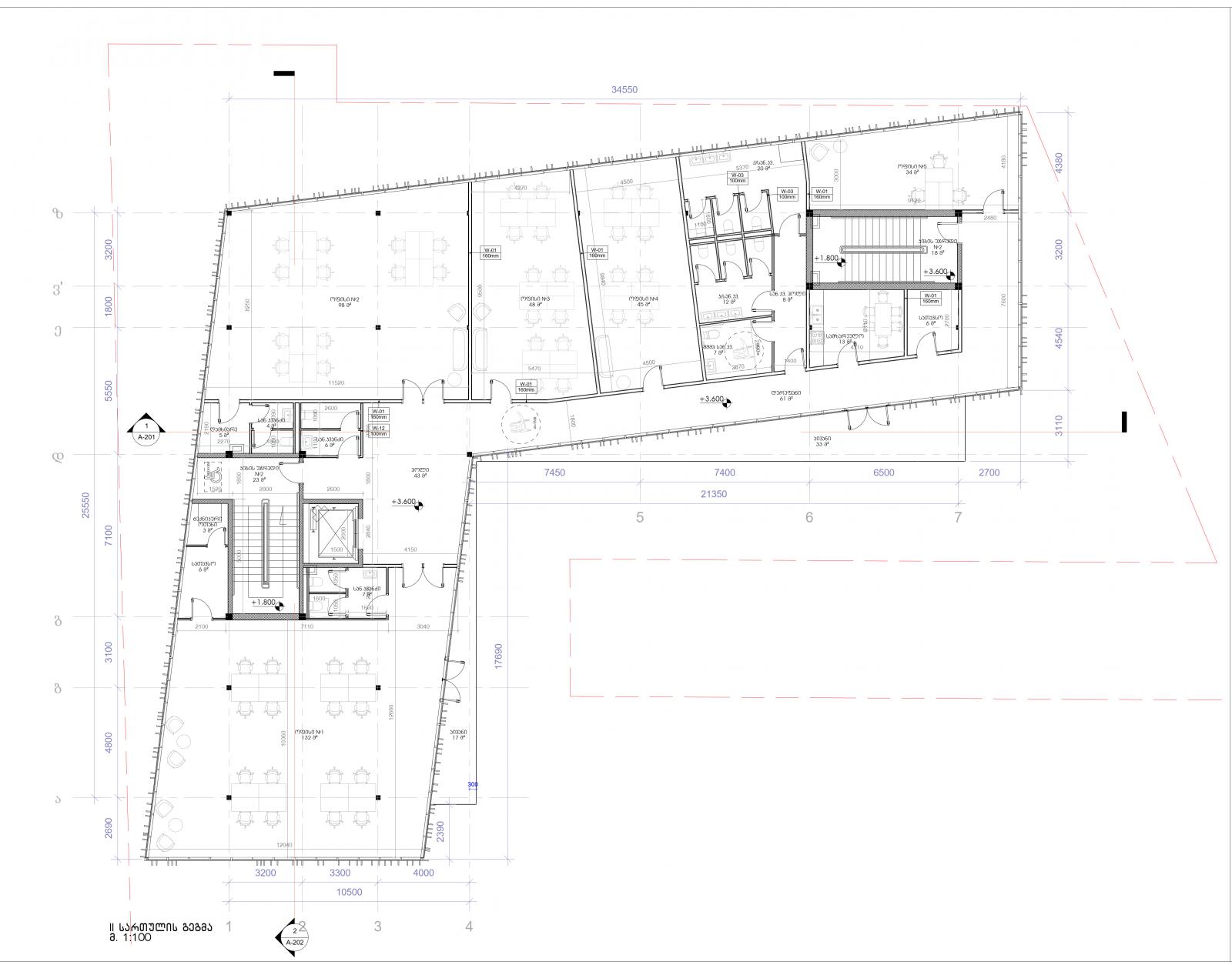
The commercial building in York Town Tabakhmela is part of the broader vision to create a multifunctional and self-sustaining community. Designed to complement the residential and hospitality components of the development, the commercial building is expected to host retail spaces, offices, and service-oriented businesses that cater to both residents and visitors. Its architectural concept aligns with the eco-conscious and modern aesthetic of York Town, integrating seamlessly into the landscape while providing essential amenities that enhance daily life. The inclusion of commercial infrastructure reflects York Towers’ commitment to creating a vibrant, livable environment where work, leisure, and nature coexist.











