Location: Tbilisi, Georgia
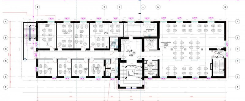
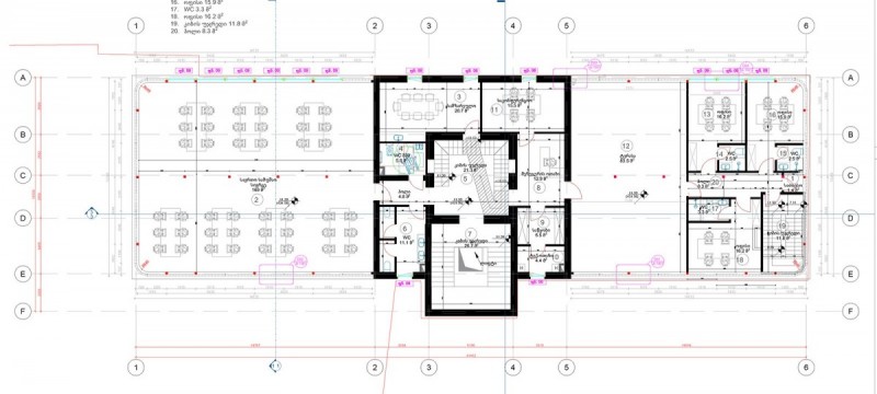
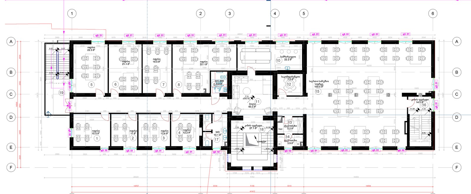
26 in the Commissioner's district, on Moscow Avenue, in one of the industrial parts of Tbilisi, in Navtlukh (Samgori), the former enterprise Ceramics Factory has acquired a new life, an independent identity. With its diverse functionality, the renovated space of the factory will contribute to the cultural and creative development of society: the exhibition space in the complex will host cultural events. Seminars will be held in conference halls, various work processes will be held in open common spaces, private offices or joint meeting rooms. The bookstore will offer guests a wide literary selection and provide a platform for literary events. The cafe located in the factory will serve both the common work space and visitors to this unique environment, and the hostel will provide comfortable accommodation for guests.






















