Location: Adjara, Chorokhi river valley (Mirveti village)
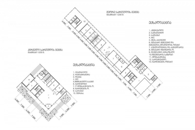
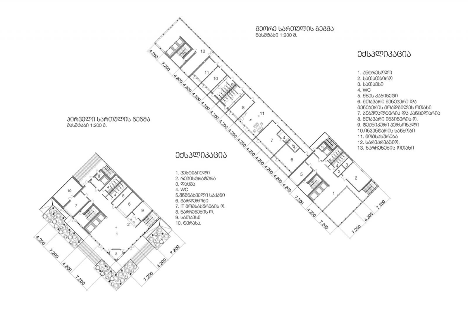
The valleys of the Chorokhi and Mirveti rivers are regions rich in cultural and geographical resources. They are located in Adjara, in the southwestern part of Georgia, on the left bank of the Chorokhi River, at an elevation of 60 meters above sea level. The project site is situated on the slope of the Chorokhi, covered with chestnut, beech, and hornbeam forests. Rare species can also be found here, such as Colchic boxwood, Unger’s maple, elm, and others. This area represents a site of high interest for tourists. Notable historical monuments from different periods include the main monument of Mirveti, the thirteenth-century arched stone bridge, which is an important historical landmark reflecting the region’s cultural and architectural heritage, as well as the 1970s motor bridge of Mirveti, which is considered a source of pride for the local community. The main natural attraction of Mirveti is its waterfall, distinguished by its natural beauty, impressive surroundings, and untouched ecosystem. The trail leading to the waterfall passes through a Colchic boxwood grove, which is listed in the Red Book and requires special protection. The project site covers an area of nine hectares (90,000 square meters). The multifunctional recreational complex includes a hotel with 170 beds designed for both vacationers and athletes, a sports club, and facilities for rafting and other extreme sports, with a zipline planned from one of the hotel’s towers across the Chorokhi Valley to the Mirveti waterfall. The complex also features a conference hall and a restaurant, and solar panels will be used as a source of electricity. The project emphasizes the preservation of the landscape and biodiversity, the long-term protection of the natural ecosystem, ecological safety, and the promotion of tourism and recreational activities in a natural environment.











