Location: The project area is located in the western part of Tbilisi, in the vicinity of Lisi Lake, near the territory of the new hippodrome, in the vicinity of Beritashvili Street.
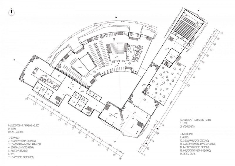
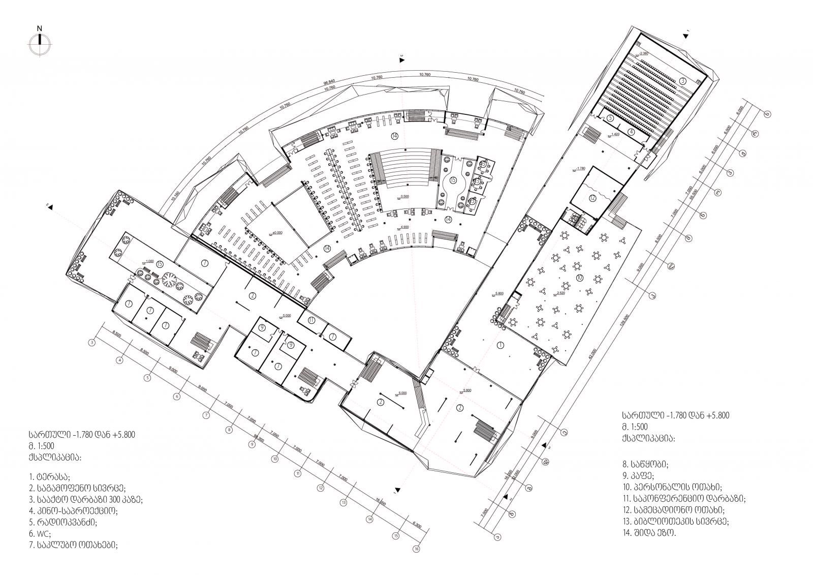
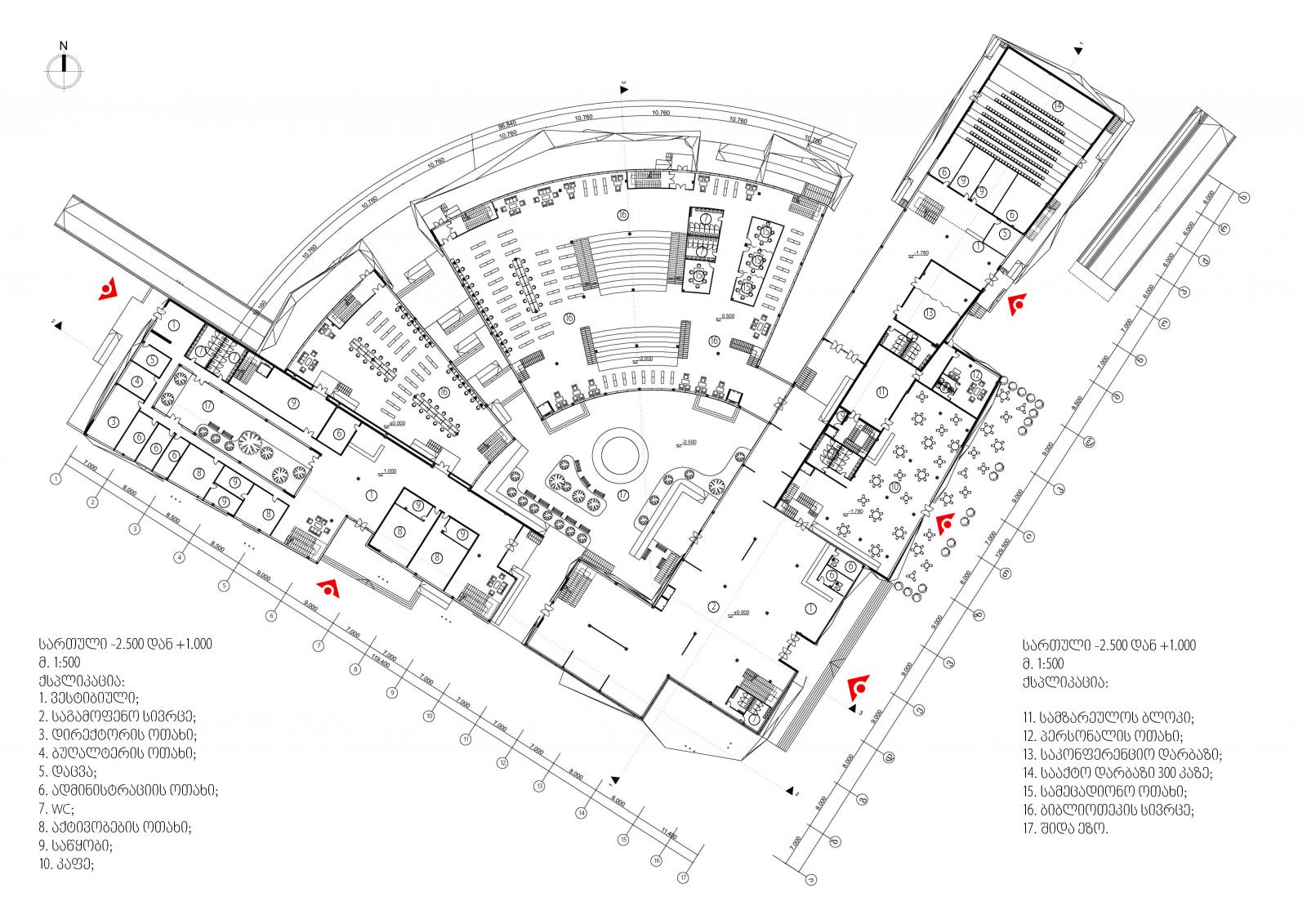
Multifunctional library Relevance and Types of Libraries Libraries provide free and quick access to information resources. Despite the advent of digital technologies and their rapid access to information, libraries still remain in demand as a community gathering space where information is obtained in various ways. The library provides a quiet place for readers to study, access to academic materials, and support services. Many libraries also offer programs that promote learning for all age groups. By collaborating with schools and universities, libraries help to enhance the educational experience and support lifelong learning. One of the most significant changes in libraries today is the use of digital technologies. Modern libraries offer digital resources, including e-books, audiobooks, online databases, and digital archives. This transformation makes information more accessible, allowing readers to access resources remotely from their homes. In addition, libraries provide access to computers and the Internet, which is essential for those who do not have these resources at home. This digital transformation has made libraries more relevant in a world where information is increasingly consumed in digital formats. Libraries serve as gathering spaces for the community to share ideas and engage in various activities. They host events, workshops, and programs that address a variety of topics. These can range from book clubs and author talks to job training and technology classes. By offering these programs, libraries promote community engagement and social cohesion. The interest and desire to spread these topics and to create a modern library in the city, a space where it would be possible to work individually or in groups in peace. Public libraries are the most common and accessible type of library. Public libraries, funded by government agencies, offer free access to books, magazines, newspapers, audiovisual materials, and digital resources. They also host a variety of community programs, such as story hours for children, workshops, and cultural events. Public libraries serve as community centers that provide a safe and welcoming space for gathering, learning, and interacting with others; Academic libraries are associated with educational institutions such as universities, colleges, and research institutions. Their primary purpose is to support the academic and research needs of students, faculty, and staff. Academic libraries house extensive collections of books, academic journals, research papers, and electronic databases spanning disciplines. By providing access to scholarly resources and supporting the curriculum, academic libraries play a critical role in the educational process and the advancement of knowledge; School libraries are an integral part of schools, supporting the educational development of students from kindergarten through high school. They offer age-appropriate reading materials, educational resources, and access to technology to enhance the learning experience; Special libraries serve specific organizations, industries, or professional groups. Special libraries include corporate libraries, law libraries, medical libraries, and government libraries; National libraries are responsible for collecting and preserving the nation’s literary and cultural heritage. National libraries house extensive collections of books, manuscripts, maps, photographs, and other materials of historical and cultural significance. They provide research facilities for scholars and play an important role in preserving and documenting a nation's history and cultural identity; Digital libraries provide electronic access to information resources. They offer digital versions of books, journals, articles, and multimedia materials that can be accessed remotely from anywhere in the world; Territorial Study and Urban Concept The project area is located near Lake Lisi and follows the urban concept. The area is distinguished by a diverse cluster of modern approaches and high-class schools, which is why this area was selected. The area will be accessible and public, not only for the population, but also for schoolchildren. Like the residents of the surrounding area, private school students, whose period of study and stay in school is much longer than that of a public school student, cannot integrate with the natural environment inside the walls. Therefore, the leading goal is to provide the population with recreational and entertainment spaces accessible to them on any day of the week, where they can learn and relax. Historically, Lake Lisi is one of the most popular health zones in Tbilisi. This area is characterized by hilly terrain. In 2007, a new Tbilisi hippodrome was opened near Lake Lisi. It is worth noting that the areas surrounding Lake Lisi were mainly intended for agricultural purposes, however, over time, the increased interest in this area has led to a change in functional loads. The lake is surrounded by bicycle and pedestrian paths. Recreational; rest and catering facilities are mainly concentrated in the eastern sector of the lake. As for the territory of the concept itself, the area is mainly leveled, although the surrounding space is quite relief. When describing the area, we can say that the specified space is characterized by a hilly plateau and relief. Currently, there is no development in the territory and only greenery. Urban development has begun in the territory since 2010. In reality, these processes have been going on for 14-15 years, which have both positive and negative sides: The following circumstances can be named among the strengths: it develops the economy; infrastructure; excites nearby residents; creates new places to work and live; The negative sides can be named: pressure on the existing infrastructure, which, in addition to the transport infrastructure, also includes the danger of overloading engineering networks; This may worsen the quality of life of both residents and new residents; expansion may also cause an impact on the ecological conditions of the territory - nature; social inequality; loss of agricultural territories (arable land); increase the consumption of electricity and heating, which will contribute to ecological warming and change climatological factors. Residential buildings predominate in the study area. The diagram clearly shows and in second place are educational buildings such as schools and kindergartens. Among the attractions and significant objects in the area, it is necessary to single out Lisi Lake, as well as the territory of the new racetrack, which, despite its low traffic compared to other racetracks, is still an orientation center and plays an important role in the formation of the territory. The urban concept takes into account: school; kindergarten; Sunday school; media library; library; sports hall and open playgrounds; exhibition spaces; pavilions; TOWN HOUSES; green shopping malls; shopping and catering facilities. The analysis of the territory revealed the shortcomings of the transport infrastructure and the lack of dimensions. In general, the road network in the Sakvel area is small, therefore, in the morning hours from 8:30-9:30, the road leading to Lisi Lake - Beritashvili Street; Amashukeli and Datuashvili Streets are practically paralyzed. This is facilitated by the abundance of private educational sectors in the area surrounding Lisi Lake. Three main busy nodes were identified, (A;B;C), of which the most busy are: 1. The circular transport node of Lisi Lake, Beritashvili, Amashukeli and Mukhran Machavariani Streets (B). The next busiest intersection is the Serpentine and Machavariani Street intersection of the New Road (C), and the smallest one is the intersection of Nutsubidze 2nd and 4th Plateau and Beritashvili Street, which we have conditionally called (A). This intersection is busy from 8:30 to 11:00 in the morning, and movement along Beritashvili Street and Mukhran Machavariani Street is practically difficult. On weekends and holidays, there are no such traffic jams, which is related to the working and school periods, although on these days, the Lisi Lake recreational area is visited by a large number of vacationers and visitors. Also, when the Tbilisi Open Air Festival is held on the territory of Lisi Wonderland, for only three days every year, due to the active movement of the population, the Lisi transport network from Nutsubidze Street onwards is paralyzed from 5-6 pm to 5-6 am. Accordingly, the transport network, of course, cannot accommodate this amount of population flow. The problem of transport and movement in the territory is solved by creating through connections, which implies the emergence of cable car systems. Given the geographical characteristics of the territory, we are given the opportunity to create a cable car connection from several points of the low elevation to the University metro station. We can also restore the location of the old cable car, which is located at a convenient distance for pedestrians from the exit of the Delisi metro station. Connecting the cable car line to the metro line implies going along the city's main artery, which will only contribute to the popularization of the territory and at the same time avoid overloading with cars. There are underground seasonal rivers and canals in the concept space, which provides a considerable opportunity to rethink the territory and use this geographical opportunity. These are the rivers that naturally supply Lake Lisi and flow into it. It is possible to open these channels and rivers, and after consulting with an expert, we can say that opening them will not interfere with the provision of the lake and is not dangerous for its natural flora. Otherwise, there are no geographical challenges in the area. Project The project area is located in the western part of Tbilisi, in the vicinity of Lake Lisi, near the territory of the new hippodrome, near Beritashvili Street. The urban concept preserves; roads, functional zoning, pavilions, exhibition spaces, CO-WORKING spaces, TOWN HOUSES shopping facilities, a gym, a green parking area, shopping and catering facilities, recreational spaces, a cable car. The project is located in the educational function zone decided by the concept, which covers approximately 7 hectares and the project is a library. Also, the location of the library near schools and educational buildings, resulting from the study, offers significant benefits to both students and teachers. The entrance to the project area is through the alleyway laid out by the concept. Parking space is on the surface of the territory (92 places), and underground parking is provided for the staff and supplies of the cafe and library (30 places). The building is surrounded by recreational spaces. Visually, it embodies the aesthetics of stone, the idea of which came from the proximity to the lake and nature. Concrete and a perforated metal mesh are used on the facades, which adhere to the building. As for the volume, it is adjusted to the hilly terrain of the territory, which provides interesting transitions, connections and an internal courtyard. The project includes an exhibition space spread over two floors (1270m2; 860m2), a conference and assembly hall for 300 people (assembly-440m2; 950m2), a café that also serves the public (730m2; 150 seats), activity spaces - distributed over two floors (770m2; 1000m2), administration space (440m2) and the main library located on floors three and four (290m2; 2300m2; 2100m2; 1150m2). This type of building will help students easily access books, journals and digital resources. This proximity encourages students to develop strong research skills and a love of reading. In addition, the library can host seminars, study groups, and other educational programs that directly benefit students, making learning a more engaging and interactive experience. In addition to serving students, a library in an educational district serves the entire community. Parents, teachers, and other residents can use the library's resources for their personal and professional development. It can also host events such as author readings, art exhibitions, and public lectures that enrich the cultural life of the community.













