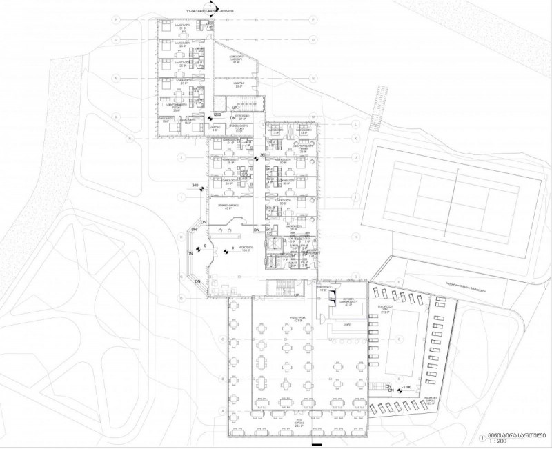
მრავალფუნქციური კომპლექსის პროექტი
Wyndham Collection ტაბახმელა სასტუმრო
ავტორი: ვახტანგი მაკასარაშვილი
ფართობი: 9000 m2
მდებარეობა: ტაბახმელა, თბილისი
იორკ თაუნ ტაბახმელას ფარგლებში დაგეგმილი Wyndham Collection Hotel წარმოადგენს პრემიუმ კლასის სასტუმროს, რომელიც განკუთვნილია როგორც ადგილობრივი, ისე საერთაშორისო სტუმრებისთვის. სასტუმრო შეესაბამება Wyndham-ის გლობალურ სტანდარტებს კომფორტის, ელეგანტურობისა და მომსახურების თვალსაზრისით და სტუმრებს სთავაზობს პანორამულ ხედებს და უშუალო წვდომას ტაბახმელას ეკო-მეგობრულ ინფრასტრუქტურაზე. სასტუმრო სავარაუდოდ მოიცავს მაღალი კლასის ნომრებს, ველნეს სივრცეებს, რესტორნებს, ღონისძიებების დარბაზებს და სხვა სერვისებს, რომლებიც სრულად ერწყმის იორკ თაუნის მშვიდ და ბუნებრივ გარემოს.











