მდებარეობა: საქართველო
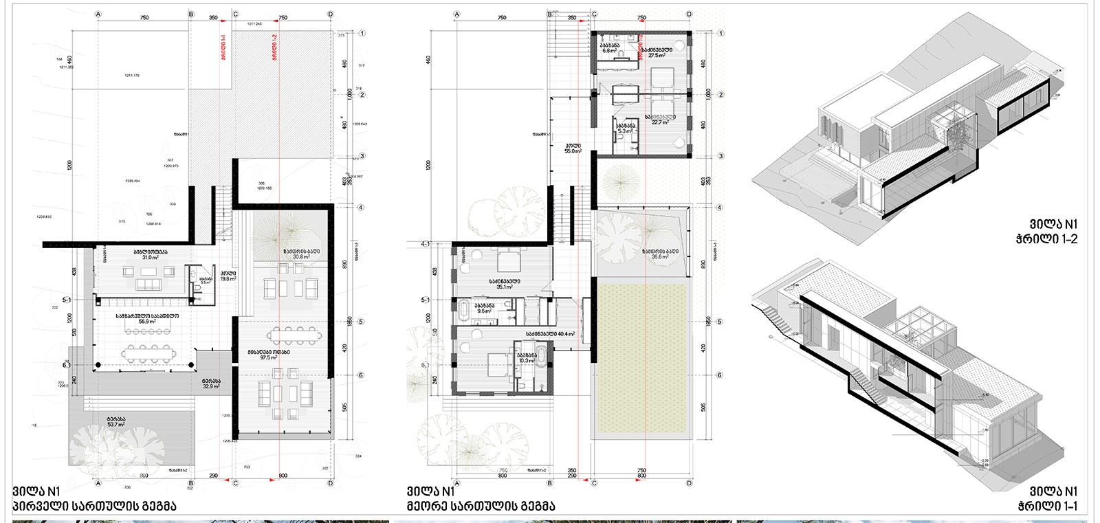
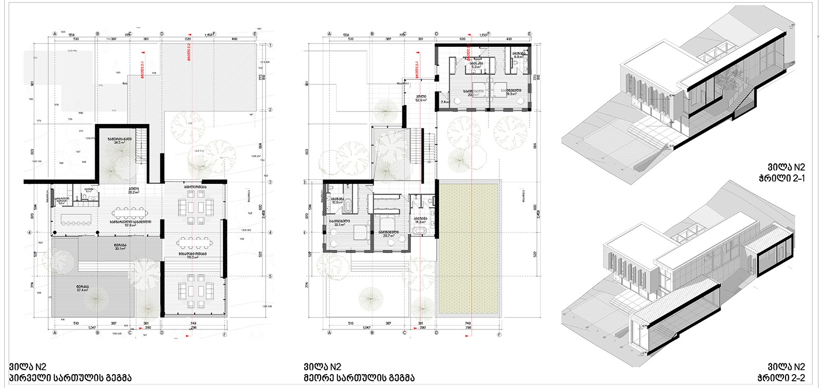
პროექტის კონცეფცია წარმოდგენილი პროექტი წარმოადგენს ორი დამოუკიდებელი ვილისგან შემდგარ დასასვენებელ საზაფხულო რეზიდენციას, საერთო/საზიარო ინფრასტრუქტურით. კონცეფციის მიზანია, მაქსიმალურად შეერწყას ბუნებრივ გარემოს და შეინარჩუნოს ტერიტორიის ეკოლოგიური და ვიზუალური მთლიანობა. ინფრასტრუქტურა და ფუნქციური ზონირება • შენობების განლაგება: ვილები ისეა განლაგებული, რომ მინიმალურად ჩაერიოს გარემოში და მაქსიმალურად გამოავლინოს არსებული ბუნებრივი უპირატესობები, მზის განათებით და ბუნებრივი ვენტილაციით. • საერთო სივრცეები: პროექტი ითვალისწინებს საერთო ინფრასტრუქტურას, რომელიც მოიცავს რეკრეაციულ ზონებს, ტერასებს, მოსასვენებელ მცირე არქიტექტურულ ჯიბეებს/ფორმებს და ფუნქციურად გამიჯნულ ბილიკებს. • ზამთრის ბაღები: კომპოზიციური აქცენტი გაკეთებულია ზამთრის ბაღების დიზაინ გადაწყვეტაზე, რაც პროექტს “სითბოსა” და ბუნებასთან სინთეზის ელფერს მატებს. მასალათა არჩევანი • ბეტონი, ხე და მწვანე საფარი - შენობების მასალად გამოყენებულია ბეტონი, ხე და მწვანე საფარი, რაც უზრუნველყოფს ბუნებასთან მაქსიმალურ შერწყმას და ვიზუალურ მდგრადობას. • დამხმარე შენობები - ისინი ორგანულად არის ინტეგრირებული რელიეფში, შეჭრილია მასში მოპირკეთებული ხის/ბეტონის ფასადით და დაფარულია მწვანე საფარით, რაც ბუნებრივ ლანდშაფტს ჰარმონიულად ერწყმის.




















